Guinea Local Manufacturer of China Sinotruk
This dry bulk tanker trailer, specially customized for transportation scenarios in Guinea, is a professional transportation equipment that balances sealing performance and loading unloading efficiency. The dry bulk tanker trailer has broad application prospects in local grain transportation, cement and building materials distribution, and mineral powder transfer.
As a core best selling model among dry bulk tankers for sale, this three axle dry bulk tanker trailer is constructed with high strength wear resistant steel for dry bulk tanker trailer tank and frame, forming a stable load bearing system through optimized mechanical structure design. The dry bulk tanker trailer maintains excellent driving stability when loading heavy powders such as cement and fly ash, or light bulk cargo such as grain and soybean meal, ensuring transportation safety throughout the process. This dry bulk tanker trailer adopts a large capacity tank design with a high efficiency unloading device, which greatly increases the single transportation volume and operation efficiency, perfectly matching the material transfer needs between urban and rural areas in Guinea.

3 Axle Dry Bulk Tanker Trailer for Sale in Guinea

3 Axle Dry Bulk Tanker Trailer for Sale in Guinea

3 Axle Dry Bulk Tanker Trailer for Sale in Guinea

3 Axle Dry Bulk Tanker Trailer for Sale in Guinea

3 Axle Dry Bulk Tanker Trailer for Sale in Guinea

3 Axle Dry Bulk Tanker Trailer for Sale in Guinea
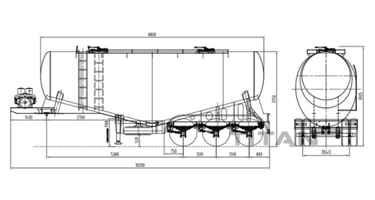
Dimension: 8700mm * 2500mm *4000mm
Tanker body material: 5mm high strength wear resistance steel
Payload: 50 ton
Axles: 3 axles
Tire: 12 units
Compressor: 12m³ double cylinder air compressor
Diesel Engine: WEICHAI Brand
Compressor: BOHAI
Suspension: Heavy-duty mechanical suspension
Landing gear: JOST

3 Axle Dry Bulk Tanker Trailer for Sale in Guinea
The structural design of this dry bulk tanker trailer fully combines the transportation characteristics of Guinea. The inner wall of the tank has undergone special polishing treatment to effectively reduce powder residue, making dry bulk tanker trailer especially suitable for transporting easy caking materials such as cement and lime.
As a star product among dry bulk tanker trailers for sale, it is equipped with a quick connect unloading interface that can be connected to construction site equipment without complicated tools, significantly shortening the loading and unloading time which is crucial for construction projects with tight schedules and seasonal agricultural transportation in Guinea. At the same time, the dry bulk tankers for sale support fine-tuning of the unloading pressure according to the characteristics of the powder, and with the adjustable support device, ensure that materials of different densities can be discharged smoothly.
Targeting Guinea's climatic characteristics of long rainy seasons, high humidity and heavy salt spray in coastal areas, the dry bulk tankers for sale have undergone comprehensive anti-corrosion treatment. After two rounds of sandblasting and rust removal on the tank surface, a special anti-corrosion coating resistant to salt spray is applied, which can effectively resist rust caused by rainwater, sea breeze and powder residue, greatly extending the service life of the equipment.
For Guinea's rainy season, this dry bulk tanker trailer can be optionally equipped with a thickened rainproof tarpaulin, which, together with the tank mouth sealing rubber strip, completely prevents rainwater from seeping into the tank, ensuring the transportation quality of moisture-sensitive materials such as cement and flour. In addition, the optimized axle layout makes the weight distribution of the whole dry bulk tanker trailers for sale more uniform, and the dry bulk tanker trailers for sale can maintain good trafficability even on the unpaved roads in rural Guinea.
As a rigid demand equipment in Guinea's transportation market, durability is one of the core competitiveness of dry bulk tanker trailers for sale. This dry bulk tanker trailer adopts an integrated welding process, and the main load bearing beam and the tank support form a solid integral structure, avoiding loose connections after long term high intensity use.
The key welding points are completed by automated equipment to ensure stable welding quality, enabling the dry bulk tanker trailer to easily cope with high frequency transportation operations in complex scenarios such as mining areas and construction sites in Guinea. The solid structural design allows the equipment to avoid frequent maintenance, effectively reducing the downtime loss and maintenance costs of enterprises, and further improving operating efficiency.